(编号:280676) 泉州一手标准厂房,五十年独立产权,可按揭八成
|
|||||
| 发布时间: | 2023-07-22 08:54:46 | 房源状态: | 出租中 |
|
|
| 所在区域: | 泉州 / 海丝智造产业园 | 建筑结构: | |||
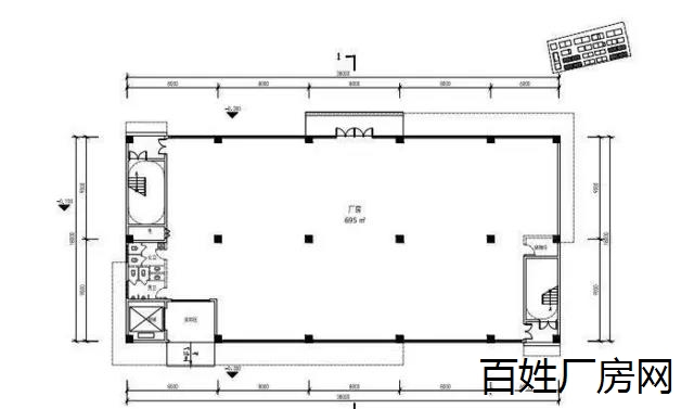
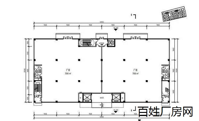
| 厂房面积: | 3800 ㎡ | 车辆出入: | |||
| 出租价格: | 4000 元/平米/天 | 配电容量: | KVA | ||
| 办公面积: | ㎡ | 可否分租: | |||
| 空地面积: | ㎡ | 是否独院: | |||
| 所在楼层: | 层 层高: | 有无货梯: | |||
| 具体位置: | 海丝智造产业园 | ||||


浙公网安备 33011002015824号
服务热线:13093751618 服务时间:8:30 - 21:30